New England Center for Children

New England Center for Children
John and Diane Kim Autism Institute

Project location: Southborough, MA
Project size: 3 stories (33,000 SF)
Project status: Construction complete
Project date: Completed September 2016
Project cost: $8,500,000.00

The state-of-the-art research and curriculum development center houses the Autism Curriculum Encyclopedia, 10 research rooms, a model classroom, and multiple group observation rooms, as well as an exterior enclosed courtyard. A 2nd story exterior patio, resource room, and break room were all provided for employees.

Eisenberg Assisted Living

Eisenberg Assisted Living

Project location: Worcester, MA
Project size: 3 stories (6,735 SF)
Project status: Schematic Design complete
Project date: TBD
Project cost: $2,360,000.00

Three story addition to an existing six story assisted living facility to include 12 studio apartments.

Women's Health of Central MA

Women's Health of Central MA

Project location: Worcester, MA
Project size: 4 stories (23,940 SF)
Project status: Construction complete
Project date: Completed 2016
Project cost: $1,200,000.00

Alterations to existing 4 story building for use as medical offices for OB/GYN, family practice, radiology, ultrasound, laboratories, and related offices.

Tri-River Family Health Center

Tri-River Family Health Center

Project location: Uxbridge, MA
Project size: 2 stories (3 phases)
Project status: Construction complete
Project date: Completed 2001
Project cost: $3,430,000.00

DSA has been working with Tri-River Health Center to devleop their medical facility since 1978. The project began with the construction of a new medical facility housing internal medicine offices. The 2nd phase added the lab, radiology, and medical records offices. The 3rd phase added the pediatrics and OB/GYN offices, as well as enlarging the associated staff areas.

Worcester Fitness

Worcester Fitness

Project location: Worcester, MA
Project size: 2 stories (33,500 SF)
Project status: Construction complete
Project date: Completed 2008
Project cost: $850,000.00

DSA has completed 10 projects for Worcester Fitness over the last 23 years, including a swimming pool addition, an addition for handicapped accessibility, renovations to locker rooms, offices, entrances, fitness areas, and in-fill of former racquetball courts with new floors to provide an enlarged exercise space.

Lasry Building Lab Renovations

Lasry Building Lab Renovations

Clark University

Project location: Worcester, MA
Project size: 1,350 SF
Project status: Construction complete
Project date: Completed 2017
Project cost: $76,000.00

Alterations to two existing biology laboratories. Work included new casework, plumbing, and electrical work, and painting.

Wayside Racquet and Swim Club

Wayside Racquet and Swim Club

Project location: Worcester, MA
Project size: 1 story (57,000 SF)
Project status: Construction complete
Project date: Completed 2003
Project cost: $1,000,000.00

Work over multiple projects included a new swimming pool addition, a new wheelchair lift, two new mezzanines to provide for an enlarged fitness area, renovations to the fitness areas, and renovations to the locker rooms.

Argo Medical

Argo Medical

Project location: Marlborough, MA
Project size: 1 story (5,000 SF)
Project status: Construction complete
Project date: Completed 2011
Project cost: $1,100,000.00

Tenant fit out of existing building for lab and clean room spaces for research and development.

NECC Day Care

New England Center for Children
Day Care

Project location: Southborough, MA
Project size: 2 stories (13,000 SF)
Project status: Construction complete
Project date: Completed 2013
Project cost: $2,275,000.00

A daycare building and playground for 100 children of staff working at the main building. 8 classrooms, a play room, office, and an exterior playground.

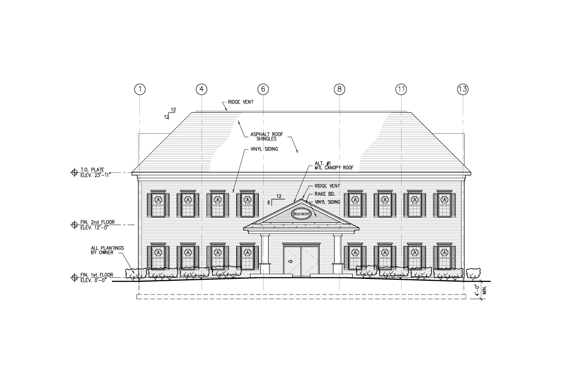
Beaumont Rehabilitation and Skilled Nursing Center

Beaumont Rehabilitation
and Skilled Nursing Center

Project location: Northbridge, MA
Project size: 2 stories (7,400 SF)
Project status: Construction complete
Project date: Completed 2004
Project cost: $750,000.00

DSA designed an adult daycare and rehabilitation center on the Beaumont campus. Renovations included interior and exterior activity spaces, dining, kitchen, toilets, offices, counseling, nursing areas, salon, crafts, and a large covered entry.

Tri-Valley, Inc.

Tri-Valley Elder Services, Inc.

Project location: Dudley, MA
Project size: 2 stories (20,000 SF)
Project status: Construction complete
Project date: Completed 2015
Project cost: $2,400,000.00

Tenant fit out of an existing mill building to serve as the main facility for T.V.E.S. The spaces provided were multiple office spaces of differing layout for large meetings, reception araes, and general meeting areas for providing services for the elderly population.

Fallon Clinic

Fallon Clinic

Project location: Fitchburg, MA
Project size: 1 story (18,025 SF)
Project status: Construction complete
Project date: Completed 1994
Project cost: $2,350,000.00

New medical office building for primary care, OB/GYN, radiology, laboratory, pharmacy, medical records, staff and support facilities.

Phone

508.755.0533

Address

300 Main St
1st Floor
Worcester, MA 01608