DSA has designed hundreds of retail and business projects, and we take pride in our ability to create interesting, functional, and creativity-driven spaces that strive to enhance production and increase sales. We beleive careful lighting, presentation, and adjacency considerations yield spaces that our clients are proud to work and sell in. Click any photo below for more images.
Savers Bank, Southbridge
Project location: Southbridge, MA
Project size: 4 stories (32,100 SF)
Project status: Construction complete
Project date: Completed 2002
Project cost: $4,780,900.00
In the Main Street historic district of Southbridge, this renovation carefully maintained the building's outward character to the community, while allowing the consolidation of a branch bank and bank operations center.
Savers Bank, Uxbridge
Project location: Uxbridge, MA
Project size: 4 stories (24,335 SF)
Project status: Construction complete
Project date: Completed 2005
Project cost: $3,832,600.00
Listed on the National Register of Historic Places, the former Uxbridge Inn became a branch bank through an addition and renovation. This project was awarded the Silver Hammer Award by the Worcester Chamber of Commerce.
Hudson Savings Bank
Project location: Hudson, MA
Project size: 3 stories (28,900 SF)
Project status: Construction Complete
Project date: Completed 2001
Project cost: $1,289,000.00
Located at the center of the Historic District of Hudson, this branch bank and offices were built directly above the existing parking area to preserve the architectural fabric of the street.
Garden Fresh Courthouse Cafe
Project location: Worcester, MA
Project size: 1 story (2,770 SF)
Project status: Construction Complete
Project date: Completed 2007
Project cost: $275,000.00
DSA designed the interior of this lunchtime cafe to be as open and inviting as possible. Two distinct areas were created by using lighting fixtures and floor finish changes that allowed patrons that were dining in to have a more enjoyable dining experience while the serving line provided a clear path to quickly order take-out food.
196 Park Avenue
Project location: Worcester, MA
Project size: 1 story (10,500 SF)
Project status: Construction complete
Project date: Completed 2016
Project cost: $750,000.00
Alterations to existing one story with partial basement retail building. Work included alterations to 7,700 SF of the building for use as a nails and spa facility and modifications to the facade of the entire building.
Ted's Package Store
Project location: Charlton, MA
Project size: 2 stories (28,400 SF)
Project status: Construction complete
Project date: Completed 2013
Project cost: $3,276,000.00
Work included the demolition of the existing store on site, and the construction of the new, much larger building. Planning and phasing were important elements to this project, as the existing store had to remain in operation for as long as possible during construction.
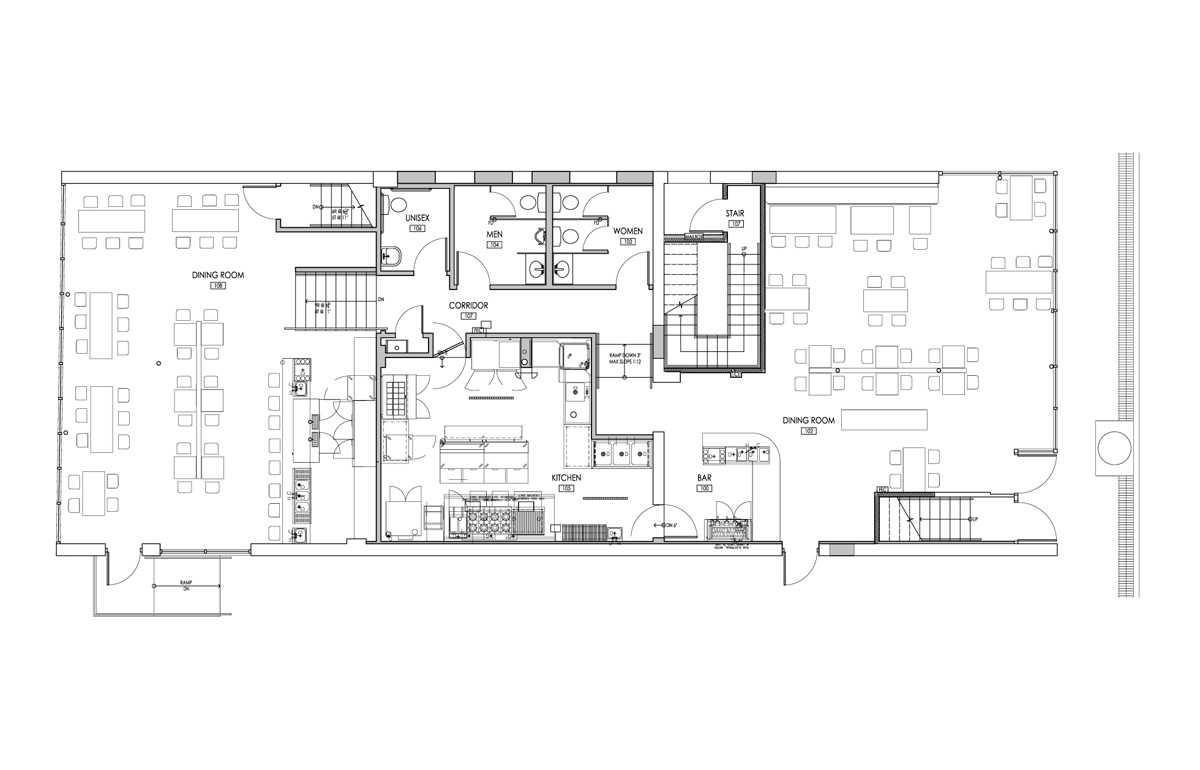
Lock50 Restaurant
Project location: Worcester, MA
Project size: 2 stories (9,630 SF)
Project status: Construction complete
Project date: Completed 2016
Project cost: $1,500,000.00
Alterations to existing two story brick masonry building for use as a restaurant on the basement and first floor levels and three one-bedroom apartments on the second floor.
Hanover Theatre Expansion
Project location: Worcester, MA
Project size: 3 stories (22,000 SF)
Project status: Under Construction
Project date: To be completed in 2017
Project cost: $5,000,000.00
As part of a greater revival of the Theatre District in Worcester, the Hanover Theatre purchased its neighboring building in order to convert the building into a mixed-use facility. It includes offices, rehearsal studios, function rooms, and a street-level restaurant.
Motor Sports International
Project location: Auburn, MA
Project size: 1 story (35,000 SF)
Project status: Construction complete
Project date: Completed 2005
Project cost: $3,200,000.00
New construction of a motorcycle retail and service center.